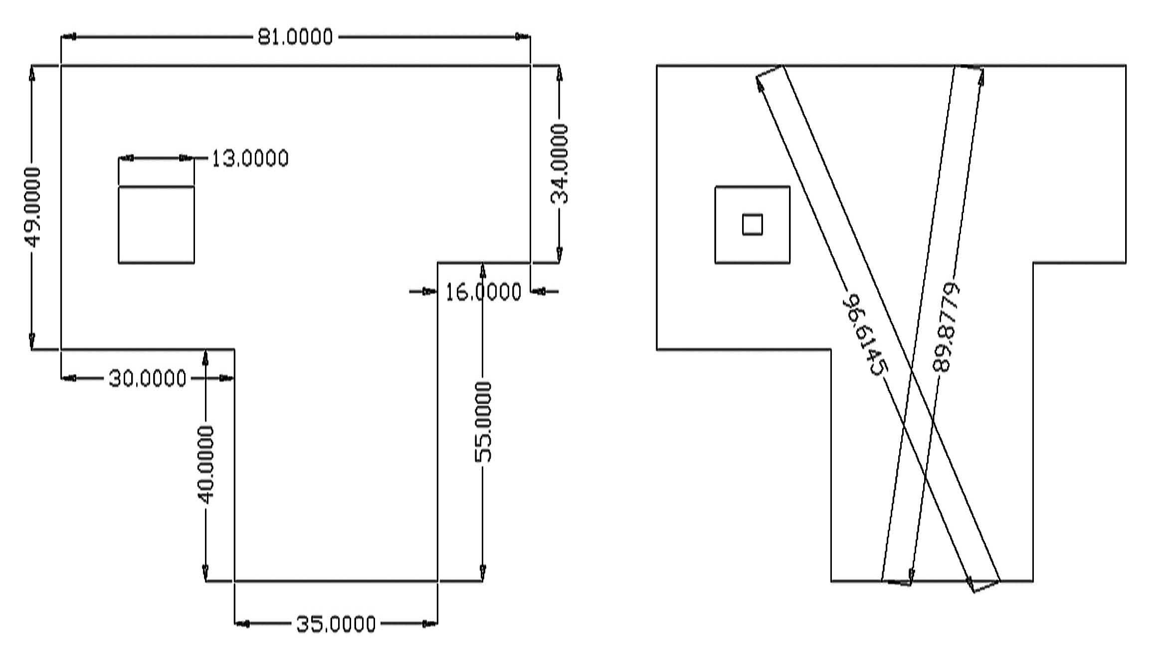
pianta

Lascia un commento